Új építésű belvárosi lakás nagy terasszal! 2.

23807 Nyomtatás Ajánlás Facebook

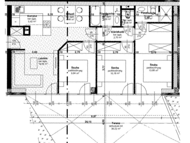
Szeged Belvárosában, a Tisza Lajos körúton eladó, modern tervezésű, 39 lakásos új építésű társasház földszintjén, kulcsrakész, egyedi kialakítású, 75,01 négyzetméteres lakás, 38,22 négyzetméteres terasszal, két fürdőszobával, igény szerint garázs vásárlási lehetőséggel.

A lakás jellemzői:
- terasz: 38.22 m2
- lakótér: 75,01 m2
- össz. terület: 105,59 m2, teraszféllel: 94,12 m2

- amerikai konyhás nappali
- 3 hálószoba
- 2 fürdőszoba

- földszinti
- a társasház hőszolgáltatásáról, a fűtési és melegvíz előállításáról a legkorszerűbb ház központú fűtés rendszer gondoskodik
- padlófűtés
- split klíma
- elektromos hálózat kiépítése Schneider szerelvényekkel
- 60 x 120 cm kőporcelán lap burkolat (3 színben választható)
- Porta Doors Decor típusú beltéri ajtók
- redőny doboz elektromos előkészítéssel
- prémium homlokzati nyílászárók 3 rétegű üveggel (hatalmas üvegfelületek)
- 30 cm hőszigetelés
- greslap teraszburkolat
- kaputelefon
- új építésű társasház
- kulcsrakész
- lift, tágas lépcsőház
- mélygarázs, illetve tároló vásárlási lehetőség
- zöld terület és parkosított udvar
- prémium minőségű anyagok
- alacsony fenntartás
- frekventált elhelyezkedés
- jó tömegközlekedés
- értékálló befektetés

Amennyiben felkeltette érdeklődését az ingatlan, hívjon bizalommal a 06302490482 tel. számon, akár hétvégén is.
dr. Vass Zoltán

Dr. Vass Zoltán
PRÉMIUM

Dr. Vass Zoltán

10 éve a Városi Ingatlaniroda tagja
Ingatlanértékesítő
Szeged
+36 (30) 249 0482
Észrevétel a hirdetéssel kapcsolatban
Egy ingatlanos naplója