Répcelak központi,csendes,2 gener. felújítandó szintes ház

7814 Nyomtatás Ajánlás Facebook

Eladó Családi Ház Répcelakon – Ideális Otthon a Nyugalom Szigetén!

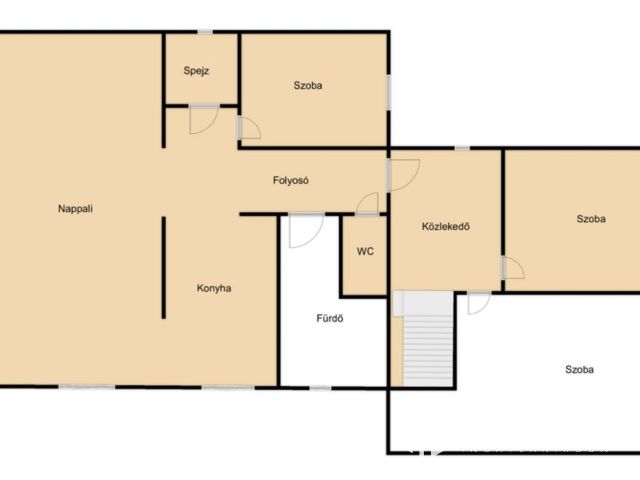
Ritka lehetőség! Eladásra kínálunk Répcelak egyik csendes utcájában, közel a központhoz, egy tágas, 240 m²-es, részben felújított családi házat, amely egy 1450 m²-es, gondozott telken fekszik.

A ház jellemzői:
- Tágas lakótér: A 7 szobás ,nappali ház, ideális nagyobb családok számára is. Emellett egy világos nappali és egy modern amerikai konyha szolgálja a kényelmet.
- Kényelmi megoldások: Az ingatlan külön fürdőszobával és WC-vel rendelkezik, mindennapjait pedig beépített szekrények és gardrób teszik még komfortosabbá.
- Korszerűsítések::A részben új villamoshálózat,3fázis, és a külső hőszigetelés biztosítja az energiahatékonyságot. A részben új nyílászárók és redőnyök tovább fokozzák a komfortérzetet.
- Belső kialakítás: Kandalló a hideg téli napokra, beépíthető tetőtér extra lehetőségekkel, valamint pince és külön tárolóhelyiségek teszik otthonossá az ingatlant.
2 generációnak is kiválóan alkalmas, ha a felújítást befejezik.
Nyílás-zárók is részben már ki van cserélve.
Tető héjazata cserép.

Külső adottságok:
- Tágas telek: A gyönyörű zöld övezet és a kertrész tökéletes helyet biztosít a pihenésre és a szórakozásra is. A kerti grillező
ideális a családi és baráti összejövetelekhez.
- Praktikus megoldások: Udvari gépjárműbeálló és garázs lehetőség, fúrt kút a kert locsolásához, valamint egy melléképület áll rendelkezésre.
- Kapcsolódás a természethez: Kertkapcsolatos terasz, ahol élvezheti a reggeli kávét vagy az esti kikapcsolódást.

Elhelyezkedés:
- A belváros közelsége és a jó közlekedés könnyű elérhetőséget biztosít a hétköznapi ügyintézéshez.
- Csendes utca, amely nyugodt, biztonságos környezetet garantál.
-A környezet, maximálisan biztonságos, és rendes lakóközösség jellemzi.

Ez a családi ház minden igényét kielégítheti, legyen szó akár nagycsaládos életről, akár nyugodt visszavonulási lehetőségről. Ne hagyja ki ezt a remek lehetőséget Répcelak idilli környezetében!

Ár: 39.000.000 alkuképes

Kérjük, vegye fel velünk a kapcsolatot további információért vagy a megtekintés időpontjáért!
+36707775138

Family House for Sale in Répcelak – Ideal Home on the Island of Peace!

Rare opportunity! We offer for sale a spacious, 240 m², partially renovated family house in a quiet street in Répcelak, close to the center, which is located on a 1450 m², well-kept plot.

Features of the house:
- Spacious living space: The 7-room, living room house is ideal for larger families. In addition, a bright living room and a modern American kitchen serve the comfort.
- Comfort solutions: The property has a separate bathroom and toilet, and built-in cabinets and wardrobes make your everyday life even more comfortable.
- Modernizations:: The partly new electrical network, 3-phase, and the external thermal insulation ensure energy efficiency. The partly new windows and shutters further enhance the feeling of comfort.
- Interior design: Fireplace for cold winter days, build-in attic with extra options, as well as basement and separate storage rooms make the property homely.
It is also excellent for 2 generations, if the renovation is completed.
Windows and shutters have also been partially replaced.
Roof covering is tiled.

Exterior features:
- Spacious plot: The beautiful green area and the garden area provide a perfect place for relaxation and entertainment. The garden barbecue
is ideal for family and friends gatherings.
- Practical solutions: Courtyard parking and garage option, drilled well for watering the garden, and an outbuilding are available.
- Connection to nature: Terrace with garden connection, where you can enjoy your morning coffee or evening relaxation.

Location:
- The proximity to the city center and good transportation provide easy access for everyday administration.
- Quiet street, which guarantees a calm, safe environment.
- The environment is characterized by a maximum of safety and a decent residential community.

This family house can satisfy all your needs, whether it is a large family life or a peaceful retreat. Don't miss this great opportunity in the idyllic surroundings of Répcelak!

Price: 39,000,000 negotiable

Please contact us for more information or to schedule a viewing!
+36707775138

Tóth Mihály

Tóth Mihály

6 éve a Városi Ingatlaniroda tagja
Ingatlanértékesítő
Körmend
+36 (70) 777 5138
Észrevétel a hirdetéssel kapcsolatban
Egy ingatlanos naplója