Prémium családi ház medencével Újszegeden!

6238 Nyomtatás Ajánlás Facebook

Prémium kategóriás családi ház, zöld övezetben Újszegeden! Az ingatlan mind tervezésében, valamint kivitelezésében megfelel a legmagasabb minőségi elvárásoknak, a 769 négyzetméteres telken épült 280 négyzetméteres családi ház ideális választás nagycsaládosok, illetve tágas tereket igénylők számára is, hiszen 5 hálószobás elrendelkezésével minden lakónak lehetőséget ad a privát szférára. Ráadásul egy 3 férőhelyes garázs biztosítja, hogy mindig kényelmesen parkolhasson.
A lakók kényelmét szolgálja továbbá a fűthető úszómedence és jakuzzi, hogy nap mint nap kihasználhassa a ház nyújtotta lehetőségeket a pihenésre és kikapcsolódásra.

Az ingatlan főbb jellemzői:
- telek: 769 négyzetméter
- lakótér: 212 négyzetméter
- 3 férőhelyes garázs: 68 négyzetméter
- fedett terasz: 51,94 négyzetméter (edzett üveg fedéssel, infra panellel, ventilátorral felszerelve)
- erkélyek: 13 négyzetméter
- 11 x 4,5 méteres úszómedence

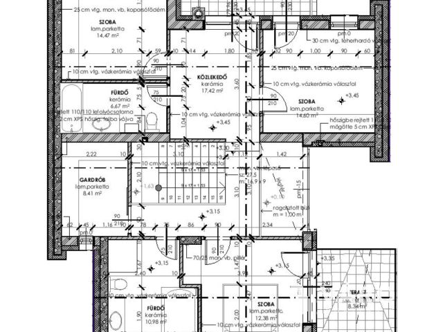
- amerikai konyhás nappali (52,15 m2, egyedi konyhabútorral, minőségi, beépített konyhagépekkel)
- 4 hálószoba (14,47 m2, 14,60 m2, 14,00 m2, 12,38 m2)
- dolgozó szoba (10,07 m2)
- gardrób (8,13 m2)
- 3 db. fürdőszoba (infraszaunával, kádas, illetve zuhanyzós kialakítással)
- udvarról is megközelíthető zuhanyzós fürdő
- háztartási helyiség (8,13 m2)
- közlekedő 11,27 fsz. + 17,42 m2 em.
- előtér (4,83 m2)

- 10 KW. napelemrendszer, szaldós elszámolással
- hűtő- fűtő klíma
- padló, illetve radiátoros fűtésrendszer
- kondenzációs gázkazán
- minőségi műanyag külső nyílászárók (nagy hőszigetelő képességű, 3 rétegű, gáztöltésű üvegezéssel szerelt)
- elektromos redőnyök, zsalúziák
- légtechnikai rendszer
- központi porszívó
- kamera rendszer
- riasztó
- infraszauna
- finn szauna
- jakuzzi
- elektromos garázskapu
- minőségi, luxus beépített bútorok
- egyedi belső elrendezés
- prémium anyagok
- kertkapcsolat
- öntözőrendszer
- kiváló elhelyezkedés
- alacsony fenntartás
- élhető, tágas kialakítás
- díjmentes parkolás az utcán
- a meghirdetett ár tartalmazza az összes bútort és berendezést

Bármely kérdés felmerül önben az ingatlannal kapcsolatban, hívjon bizalommal, a 06 30 2490482 tel. számon.
dr. Vass Zoltán

Dr. Vass Zoltán
PRÉMIUM

Dr. Vass Zoltán

10 éve a Városi Ingatlaniroda tagja
Ingatlanértékesítő
Szeged
+36 (30) 249 0482
Észrevétel a hirdetéssel kapcsolatban
Egy ingatlanos naplója