Modern okosotthon eladó a Visegrádi utca elején!

3629 Nyomtatás Ajánlás Facebook

Modern okosotthon eladó a XIII. kerületben, a Visegrádi utca elején – azonnal birtokba vehető!

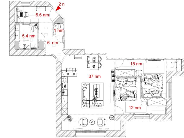
A XIII. kerület egyik legjobb részén, a Visegrádi utca elején, a körúthoz közel, egy szépen karbantartott, 6 szintes társasház 1. emeletén található ez a teljes körűen felújított, 81 m²-es, 3 szobás lakás.

A belsőépítész által megálmodott design, a prémium anyaghasználat és az okosotthon megoldások modern, kényelmes életteret biztosítanak – családoknak vagy befektetésnek is tökéletes választás.

Főbb jellemzők:
• Teljes körű műszaki és esztétikai felújítás
• 81 m² alapterület
• Padlófűtés minden helyiségben
• 3 rétegű, hő- és hangszigetelt nyílászárók
• Gree klíma
• Gépesített, egyedi tervezésű konyhabútor
• Belsőépítész által tervezett, alacsony energiaigényű lakás
• Részben bútorozott, kérésre teljes bútorzattal is elérhető (külön megállapodás szerint)
• Zuhanyzós fürdőszoba
• 1. emelet, galériás kialakítás

Lokáció:
Nyugati tér, Lehel tér, Szent István körút pár perc sétára. Kiváló közlekedés, éttermek, kávézók, boltok közvetlen közelben.

Birtokbavétel:
Az ingatlan azonnal birtokba vehető.
Érdeklődni privát üzenetben vagy telefonon.

Modern smart home for sale in the 13th district, at the beginning of Visegrádi Street – available for immediate occupancy!

Located in one of the best areas of Budapest’s 13th district, at the beginning of Visegrádi Street, close to the Grand Boulevard, this fully renovated, 81 m², 3-room apartment is situated on the 1st floor of a well-maintained, 6-story residential building.

The interior, designed by an interior designer, combined with premium materials and smart home solutions, offers a modern and comfortable living space – an ideal choice for families or as an investment.

Key features:
• Complete technical and aesthetic renovation
• 81 m² floor area
• Underfloor heating in all rooms
• Triple-glazed, thermal and sound-insulated windows
• Gree air conditioning
• Fully equipped, custom-designed kitchen
• Interior designer–designed, energy-efficient home
• Partially furnished, with the option to purchase fully furnished (subject to agreement)
• Bathroom with walk-in shower
• 1st floor, gallery (loft) layout

Location:
Nyugati Square, Lehel Square, and Szent István Boulevard are just a few minutes’ walk away. Excellent public transport, with restaurants, cafés, and shops nearby.

Possession:
The property is available for immediate occupancy.

For inquiries, please contact us via private message or phone.

Dávid Gábor

Dávid Gábor

6 éve a Városi Ingatlaniroda tagja
Ingatlanértékesítő
Budapest
+36 (70) 395 9545
Észrevétel a hirdetéssel kapcsolatban
Egy ingatlanos naplója