Korszerű megoldások a mindennapokra

1833 Nyomtatás Ajánlás Facebook

„Minőség, kényelem, érték – most még időben lefoglalhatja álmai otthonát!”

Szeged- Rókus városrészben eladásra kínálok egy újonnan épülő, korszerű társasház 3. emeletén található belső kétszintes, 100,18 négyzetméteres tágas lakást, 46,31 négyzetméteres terasszal, 5,34, 4,75 és 4,91 négyzetméteres erkéllyel.
Az ingatlan kiváló elrendezésű, világos, és minden részletében a minőségi kivitelezést tükrözi.
Bevezető ajánlatként ajándék lakberendezési tervekkel és konyhabútorral!

A ház kiemelkedő műszaki tartalommal épül, mely garantálja az energiatakarékos, csendes és kényelmes otthont:
-Falazat: 30 cm-es klíma- és hanggátló tégla, 20 cm homlokzati hőszigeteléssel
-Nyílászárók: 3 rétegű üvegezésű, hőszigetelt műanyag ablakok és bejárati ajtó, dekorfóliás beltéri ajtók
-Fűtés és hűtés: központi hőszivattyús rendszer, egyedi hőmennyiségmérővel, padlófűtéssel és fancoil hűtéssel
-Szellőztetőrendszer, pára elszívással
-Tető: Terran Protector tetőcserép, kiváló hő- és hangszigeteléssel
-Várható befejezés: 2027. Nyár vége

A belső terek világosak és tágasak, minőségi hideg- és melegburkolatokkal kerülnek kivitelezésre.
A modern technológia, a precíz kivitelezés és az alacsony fenntartási költség együttesen garantálják, hogy ez az otthon hosszú távon értékálló és kényelmes választás lesz.
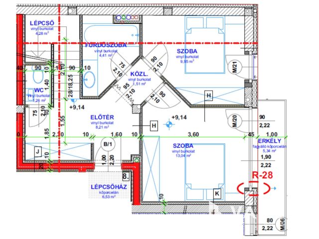
Kérlek tekintsd meg az alaprajzot az elrendezés miatt!

Üzlethelyiség 52,96 m²-es, 2,93 m² fedett terasszal, saját kertrésszel
1. Lakás 82,17 m2 + 11,42 m2 (erkély)
1.a Lakás 38,45 m2 +3,23 m2 (erkély)
1.b Lakás 43,72 m2+ 8,19 (erkély)
2. Lakás 44,97 m2+ 4,75+3,04 (erkély)
5.b Lakás 42,8 m2 + 3,76 m2 erkély
6. Lakás 76,87 m2 + 10,45 m2 (erkély)
6.a Lakás 42,71 m2 + 3,44 m2 (erkély)
6.b Lakás 34,16 m2+ 2,26 (erkély)
7. Lakás 44,89 m2 + 7,79 m2 (loggia, erkély)
8. Lakás 100,18 m2 + 56,56 m2 (loggia, terasz, erkély)
1. Garázs 17,10 m2
2. Garázs 22,72 m2
3. Garázs 23,25 m2
Udvari parkolók

További információ:
Járai Viktória- Prémium Ingatlanértékesítő, Hiteltanácsadó +36307053426 jarai.viktoria@varos.hu

Kulcsra kész ügyintézés – Neked csak költöznöd kell!
Lakásvásárlás előtt állsz? Nálunk nemcsak a tökéletes otthont találod meg, hanem a teljes háttérmunkát is levesszük a válladról:
-Díjmentes banki hitelügyintézés – több bank ajánlata egy helyen, személyre szabottan
-Ügyvédi háttér – biztos kezekben a szerződéskötés és a teljes jogi folyamat
-Teljeskörű támogatás – az első érdeklődéstől a birtokba adásig végigkísérünk
-Egyetlen kapcsolattartó, gördülékeny ügyintézés, maximális biztonság
Célunk, hogy a lakásvásárlás ne stressz, hanem élmény legyen!
Írj, hívj, és kezdjük el a közös munkát!
Járai Viktória- Prémium Ingatlanértékesítő, Hiteltanácsadó +36307053426 jarai.viktoria@varos.hu

Járai Viktória

Járai Viktória

8 éve a Városi Ingatlaniroda tagja
Hiteltanácsadó, ingatlanértékesítő
Hódmezővásárhely
+36 (30) 705 3426
Észrevétel a hirdetéssel kapcsolatban
Egy ingatlanos naplója