Jó szerkezetű kétgenerációs ház a Fürdőövezetben

7485 Nyomtatás Ajánlás Facebook

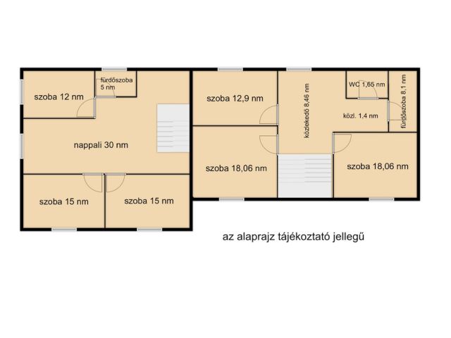
Eladó Gyula város csendes, de mégis jól megközelíthető részén, a Gyula Fürdőövezet városrészben egy 240 m² alapterületű, 2 szintes, jó szerkezetű családi ház. Az ingatlan 749 m²-es telek mérettel rendelkezik, így elegendő helyet biztosít a meglévő pincének, a melléképületnek, garázsnak és a jelenleg is telken található gyümölcsfáknak is. A házban összesen 7 szoba, 3 nappali, 2 konyha, 3 fürdőszoba, 4 mosdó és számos gardrób, tároló, dolgozószoba is helyet kapott. Az ingatlan 1990-ben épült, nagyon masszív beton lábazatra, tégla falazattal, szerkezetileg jelenleg is kifogástalan állapotban van. A külső nyílászárók fából készültek két rétegű üvegezéssel, melyek közül az utcafronti ablakok redőnyözöttek. A fűtésről két nagyteljesítményű gázkazán gondoskodik radiátor hőleadókkal, illetve egy nagyméretű, szép állapotú csempekályha is található a házban, mely a téli hónapokban az egész ingatlant felfűti. A nyári időszakban 2 db klíma segíti a hűsölést. A melegvíz bojlerről megoldott, melyek működtetése éjszakai áramról biztosított. A házban rézvezetékek találhatóak, az áramellátás 3x16A. Kedvező kialakításának köszönhetően akár két teljesen külön lakrészre bontható, de apartmanház kialakításához is tökéletes adottságokkal rendelkezik.
A kertben egy különálló pince, két garázs és melléképület mellett számos gyümölcsfa is helyet kapott, melyek öntözéséhez fúrott kút áll rendelkezésre. A gépkocsik beállására a kert felől elektromos kapu, illetve szintén elektromos garázskapu áll rendelkezésre. Mivel sarki telek, így a ház két utcáról is rendelkezik bejárattal. Az itt lakók biztonságáról riasztórendszer gondoskodik.
Kitűnő elhelyezkedésének köszönhetően a Várfürdő és a Vár mindössze 200 méterre található, az utca mégis csendes. A közelben található étterem, élelmiszerbolt és a belváros is egy könnyed sétával elérhető.
Alakítsa át apartman házzá vagy újítsa fel kétgenerációs otthonná! Az Ön döntése! Hívjon és tekintse meg személyesen, higgye el megéri!

Dr. Folczné Szentléleki Enikő
PRÉMIUM

Dr. Folczné Szentléleki Enikő

Karrierigazgató
Gyula
+36 (20) 392 2660
Észrevétel a hirdetéssel kapcsolatban
Egy ingatlanos naplója