Eladó kétlakásos családi ház Szarvason

2867 Nyomtatás Ajánlás Facebook

Szarvas központjához közel, mégis nyugodt környezetben kínálunk megvételre egy 2 lakásos, összesen 209 nm-es családi házat.

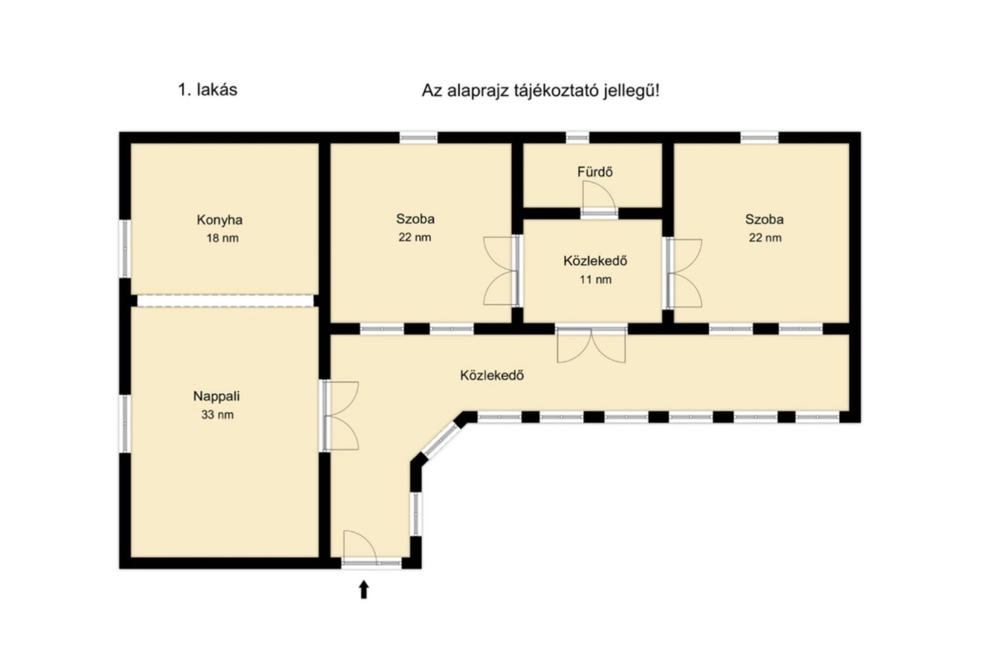
Az első lakás 149 nm-es, tégla építésű, teljesen felújított, nagy nappalival, kényelmes konyhával, valamint világos, tágas, beépített tornáccal, amely egész évben kellemes életteret biztosít. Az ingatlanban radiátoros központi fűtésrendszer és klíma is kiépítésre került, így télen és nyáron egyaránt komfortos. Villanyvezetékek, vízvezetékek felújításra kerültek. Teljes közművel rendelkezik.
A második lakás 60 nm-es, vegyes falazatú, részben felújított. Akár teljesen leválasztható egy telekrésszel, így kiváló lehetőség több generáció együttélésére (pl. nagyszülők külön háztartásban), vagy akár önálló kiadásra is alkalmas.

Az ingatlan előnye, hogy a belváros, buszmegálló, Penny, Lidl és más bevásárlási lehetőségek pár perc alatt elérhetők, így a mindennapok igazán kényelmesek lehetnek.
Ez az ingatlan ideális választás nagycsaládosoknak, összeköltözőknek vagy befektetőknek is!
A vételárba szarvasi, békéscsabai vagy gyulai lakás is beszámítható értékegyeztetéssel!

Keressen bizalommal, egyeztessünk időpontot a megtekintésre!
Külső fotókat és további információkat e-mailben küldök.
Irodánk teljeskörű segítséget nyújt az adás-vétel sikeres lebonyolításában. Rendelkezésünkre áll tapasztalt, megbízható ügyvéd, energetikus és hitelügyintéző is!

Koszecz Andrea
PRÉMIUM

Koszecz Andrea

5 éve a Városi Ingatlaniroda tagja
Ingatlanértékesítő
Békéscsaba
+36 (70) 310 4451
Észrevétel a hirdetéssel kapcsolatban
Egy ingatlanos naplója