Egy tökéletes otthon a strand mellett!

7733 Nyomtatás Ajánlás Facebook

Eladásra kínálom Gyula Fürdővárosában a Várfürdő mellett és a belvárostól is mindössze 5 perc sétára lévő 1970-es évben épült és 2021-ben felújított, csendes utcában található 2 szintes 2 nappali és 8 szobás családi házat. A ház tégla falazatú, amelyhez több fedett terasz is tartozik. Az ingatlan parkosított udvarán egy dupla, tágas garázs is található. A háztól pár percre találhatunk élelmiszerboltot, iskolát, óvodát, játszóteret. A fűtésről és a melegvíz ellátásról egy korszerű kondenzációs gázkazán gondoskodik. A felújítás során cserélve lett a teljes elektromos hálózat is, illetve egy 6 kw-os napelemes rendszer is telepítve lett, ami az ingatlan teljes energia felhasználását fedezi és az éves elszámolásnak köszönhetően a fűtésrendszerre is rá tudd segíteni. A házban cserélve lett az összes nyílászáró új hőszigetelt üveggel ellátott műanyag nyílászáróra. A fürdőszobák, konyha felújítása is megtörtént, de az összes szoba is új, magas kopás állóságú parkettát kapott.
A ház igényesen körbekerített, parkosított udvarát egy kapun keresztül lehet megközelíteni, majd az udvar végén található dupla garázst használni. A garázsban villany, víz található. Az udvar végén egy hűvös, fákkal körbeültetett kiülő és egy szép sütő hely is ki lett alakítva.
A házban több helységben lett felszerelve klíma berendezés is, ezzel biztosítva az ingatlan hűtését a meleg nyári napokon.
Az ingatlan mérete és elosztása alapján tökéletes választás lehet nagycsaládosok számára is.
Az ingatlanhoz ki lett alakítva továbbá több hangulatos, világos fedett terasz is
A földszinti rész jelenleg apartmanoként vannak üzemeltetve, amelyhez saját vendégkör is tartozik igény esetén.
A növények öntözése egy fúrt kút segítségével teljesen ingyenesen végezhető.
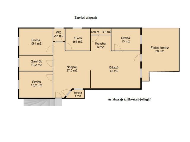
Az ingatlan hasznos lakóterülete: 241 m2.
A telek összesen: 653 m2.
Fedett teraszok területe: 66 m2.
A dupla garázs területe: 27 m2
Az ingatlan belső elosztása: 2 nappali, 8 szoba, 3 konyha, 3 fürdőszoba, 4 WC, 2 kamra, 1 dupla garázs.

Amennyiben ez a tökéletes helyen lévő, előnyös elosztású, modern, tágas és parkosított udvarral rendelkező fürdő melletti családi ház felkeltette érdeklődését hívjon bizalommal a 0670/4574-392 telefonszámon.

Szentléleki Tamás
PRÉMIUM

Szentléleki Tamás

6 éve a Városi Ingatlaniroda tagja
Ingatlanértékesítő
Gyula
+36 (70) 457 4392
Észrevétel a hirdetéssel kapcsolatban
Egy ingatlanos naplója