Ausztria határától mindössze 7 km-re korszerű telephely!

23611 Nyomtatás Ajánlás Facebook

Ausztria határától mindössze 7 km-re korszerűen felszerelt linzergyártó ipari épület teljes berendezéssel ELADÓ!

Fertődön, a Bartók Béla út 15. szám alatt egy mai napon is korszerűnek számító, 2009-es építésű linzergyártó üzemcsarnok a hozzá tartozó iroda és kiszolgáló létesítményekkel keresi új tulajdonosát.
A csarnok és a fejépület az osztrák és a német követelményeket és szigorú előírásokat figyelembe véve épült.
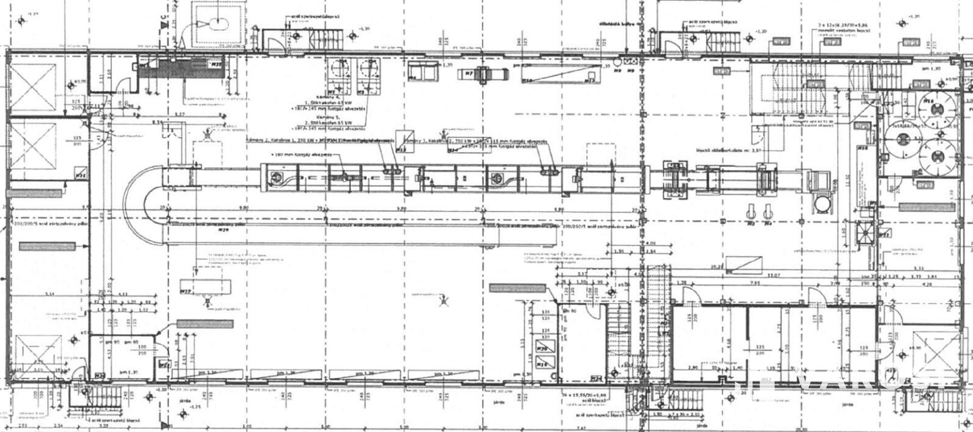
A gyártósor menete a német egészségügyi előírásoknak megfeleően lett felépítve amely természetesesen Magyarországon is elfogadott.
A gépek típusa igen magas színvonalat képvisel a mai napon is mivel főleg HAAS, KÖNIG, ESCHER és COMAS gépeket és berendezéseket találunk.
A 410m2-es fejépületben foglalnak helyet az irodák, központi gépészeti és szociális egységek, öltözők és az étkező.
Az 1288m2-es üzemcsarnok mellett 180m2-es raktárépületet és 150m2-es bemutatótermet, üzletházat is találunk amely könnyedén lakóingatlanná is alakítható.
Korábbi tulajdonos az osztrák szupermarketekbe, üzletláncokba szállított karácsonyi teasüteményt.

Elhelyezkedése szenzációs, rövid idő alatt Ausztriában találjuk magunkat úton Bécs felé.
Fő falazatuk a szendvicspanel mellett tégla vasbeton alapokon és lemezeken.
A csarnok és kiszolgáló épületei 4 kapun keresztül közelíthetőek meg burkolt utkon keresztül.
Az üzemcsarnok 4 rámpán keresztül is elérhető a ki és bepakolás végett.
A képek között találja a gépek és berendezések listáját!
Természetesen az összes munkaeszköz, gépek, berendezések és a teljes bútorzat is az eladási ár részét képzik.

Jöjjön el, nézze meg, lássa meg benne üzleti vállalkozását!

A közelben patika, bevásárlási lehetőség, szupermarketek, közintézmények találhatóak.

Az ingatlan főbb jellemzői:
-1960m2-es ingatlan(1288m2-es üzemcsarnok, 406m2-es fejépület, 150m-es üzlethéz és 180m2-es raktár)
-6263m2-es burkolt út és parkosított udvar tartozik hozzá
-Osztrák és német mintára épület csarnok és kiszolgáló épület
-Német egészségügyi előírásoknak megfelelő kialakítás és minőségirányítási rendszer
-Főleg HAAS és KÖNIG gépek
-Irodai és kiszolgáló helyiségek bútorzata, gyártósor gépei és a termékek, alapanyagok mozgatásához szükséges eszközök is a vételár részét képzik
-Az ingatlan per és tehermentes
-Az egész ingatlan elszívó rendszere fel lett újítva, gépeinek működése ellenőrizve
Közlekedése és elhelyezkedése szenzációs:
-Ausztria és Bécs rövid időn belül könnyedén elérhető
-Budapest 2 óra alatt érhető el

Irodánkban a következő szolgáltatásokkal állunk meglévő és leendő ügyfeleink rendelkezésére:
-ingatlanközvetítés (díjmentes tanácsadás, kiemelt méretű vevői adatbázis, magas szintű szakmai háttér)
-bank semleges hitelügyintézés vásárlóknak (díjmentes hitelszűrés és tanácsadás)
-adás-vétellel kapcsolatos jogi tanácsadás.
-ingyenes ingatlan közvetítés kereső ügyfeleink részére.
-energetikai tanúsítvány készítése.

Ne hagyja elveszni ezt a páratlan lehetőséget!
Minden nap elérhető vagyok, hívjon, egyeztessünk időpontot az ingatlan megtekintésére!

Porkoláb Dániel
PRÉMIUM

Porkoláb Dániel

2 éve a Városi Ingatlaniroda tagja
Ingatlanértékesítő
Budapest
+36 (70) 671 7702
Észrevétel a hirdetéssel kapcsolatban
Egy ingatlanos naplója